image de présentation pour la page fiche

Appartement 1 pièce de 28 à Metabief

  • Photo 1 100 000 € vente
  • Photo 2 100 000 € vente
  • Photo 3 100 000 € vente
  • Photo 4 100 000 € vente
  • Photo 5 100 000 € vente
  • Photo 6 100 000 € vente
  • Photo 7 100 000 € vente
  • Photo 8 100 000 € vente
  • Photo 9 100 000 € vente
  • Surface: 28m2
  • Metabief

Appartement 1 pièce de 28 à Metabief

100 000 € - Ref. 318-177821

/ SOUS COMPROMIS /

Métabief, résidence Les Genévriers.

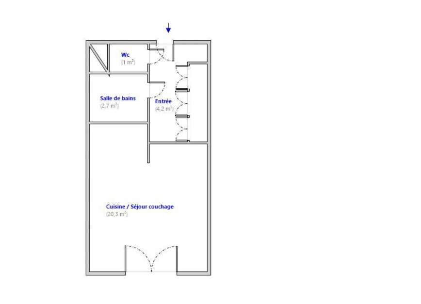
Situé au troisième étage avec ascenseur, cet appartement de type T1 se compose d'une entrée, d'une salle de bain, d'un WC, d'une cuisine ouverte sur séjour ouvrant sur un balcon. Une cave en sous-sol complète ce bien. La résidence dispose également d'une piscine intérieure chauffée.

Informations détaillées

  • Numéro Etage : 3
  • Surface Habitable : 28
  • Nombre de pièce(s) : 1
  • Année de construction : 1984
  • Nombre de Niveaux : 1
  • Accès handicapé : Non
  • Ascenseur : Oui
Conformément au règlement (UE) n°2016/679 du 27 avril 2016 en vigueur à partir de son application le 25 mai 2018 (RGPD), Nous vous invitons à consulter notre politique de confidentialité et des traitements des données